Sinclair House

Location:  Belfast

Client:  Cathedral Living

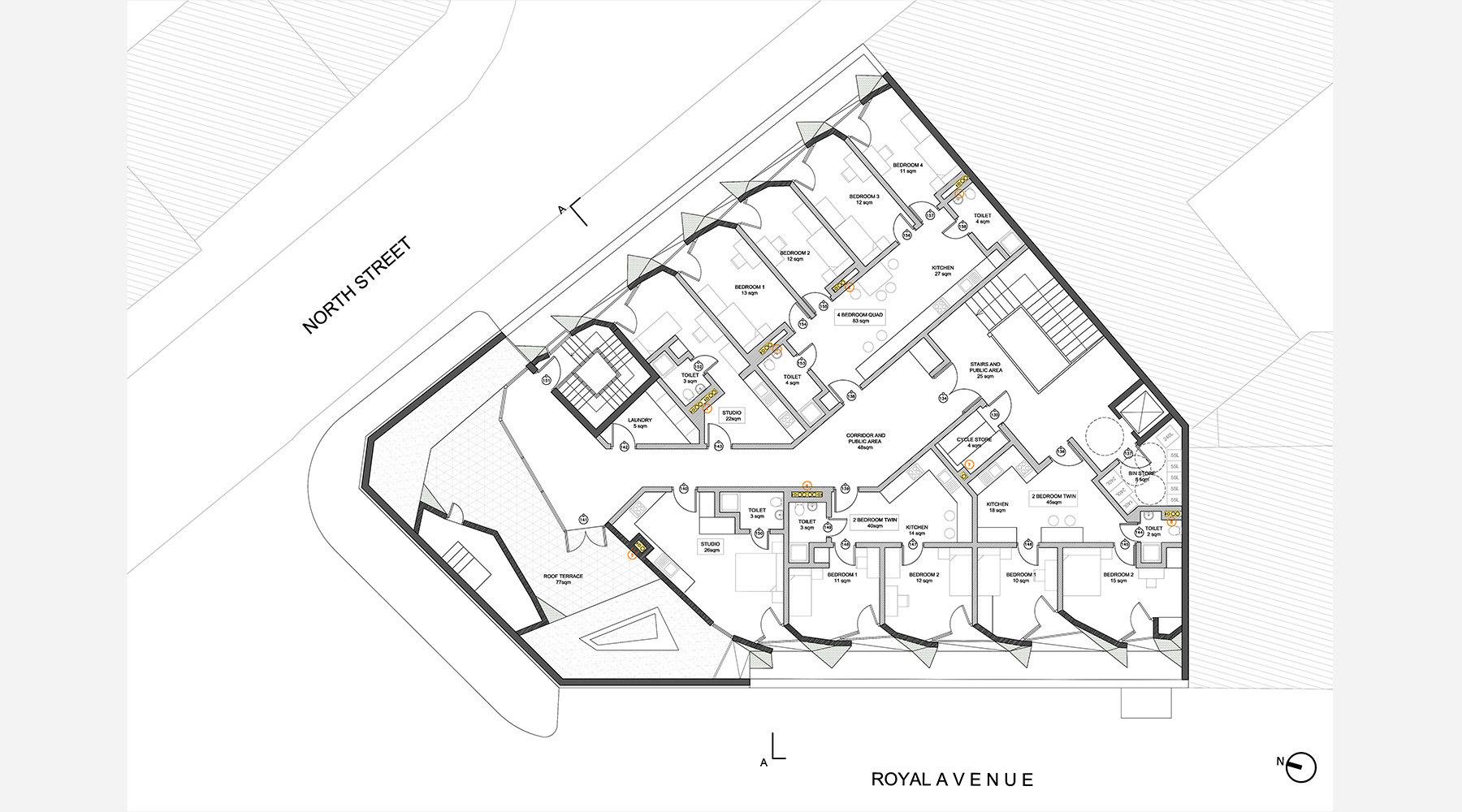
Sinclair House is a grade B+ Listed Building occupying a prominent site at the northern end of Royal Avenue. It is complimented by its Art Deco Bank of Ireland on the diagonally opposite corner and provides a front to the other historic buildings in the area. Originally build in 1926 as a Department Store, the building was extended in 1935 with an Art Deco extension on the Royal Avenue/North Street corner and had a fifth floor added.

Cost:  1m - 10m

Status:  Drawing Board

Type:  Residential

  • Project Status:
  • Completed
  • On Site
  • Drawing Board

Drawing Board

The current proposal will retain retail on the ground floor and convert the upper floors to high quality residential use. A new roof top extension, reflecting the traditional forms of the surrounding roofs clad in gold rheinzink, will provide a fitting roof to the building which for so long has been blighted by ugly tank rooms and service towers. To compliment the new roof the existing faience cladding will be cleaned and restored, and the existing inappropriate aluminium windows will be replaced with Crittal Steel windows similar to those which were originally installed.