Belfast Power Station

Location:  Belfast

Client:  Belfast Power Station

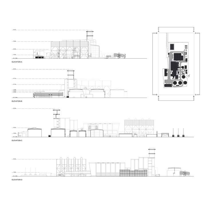
RMI were commissioned by Evermore Group in late 2016 to develop proposals for a new 480MW Combined Cycle Gas Turbine at a site in Belfast Harbour along Airport Road West. The Client’s ambitious proposal was to capitalise on the increasing regulatory drive to decarbonise energy production and to respond to reality that Northern Ireland’s coal based power stations were nearing the end of their lifespan. As a rather unique challenge RMI embraced and worked closely with the client and specialist design team to develop proposals which will use cutting edge technology to achieve 90% efficiency rates on power generation which will become a cornerstone of Northern Ireland’s energy infrastructure going forward into the 21 st century.

By their nature similar power stations across UK and Europe tend to be largely engineering and functionality driven and are characterised by a loose assortment of largely anonymous shed type structures. In recognition of the site location adjacent to City Airport and how prominent it would be in the Belfast Harbour landscape Evermore Group approached RMI with the added objective to create a landmark structure which a strong sense of order and coherence and a clear architectural language across the scheme.

A detailed planning application was submitted in early 2017 and is expected to be approved and start on site in 2018.

Cost:  10m+

Status:  Drawing Board

Type:  Industrial

  • Project Status:
  • Completed
  • On Site
  • Drawing Board

Drawing Board